FREE INSTANT ONLINE VALUATION
Sold STC
Guide Price
£210,000
Freehold
IN SUMMARY
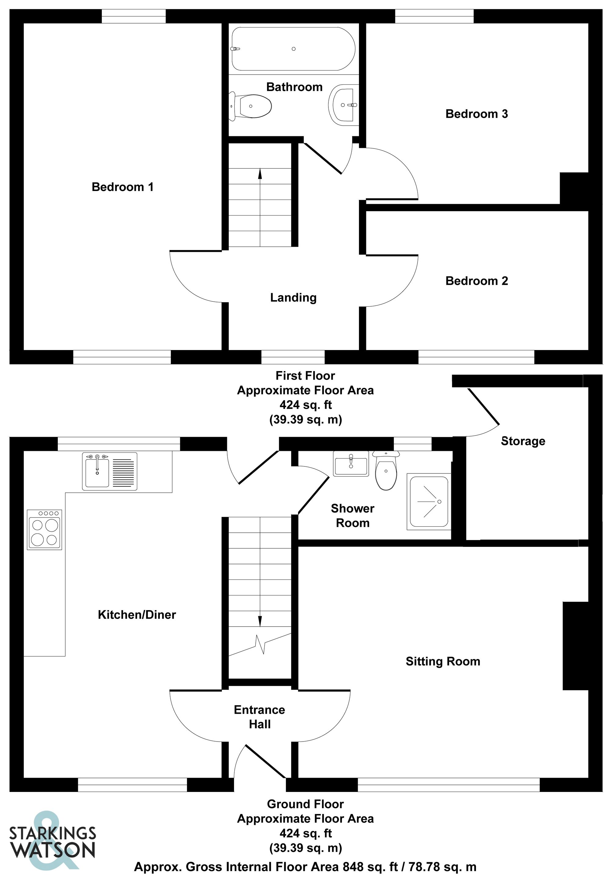
Guide Price £210,000 - £220,000. NO CHAIN. This MODERNISED mid-terrace home is situated on the fringes of this POPULAR TOWN. The property is finished with uPVC double glazing and electric storage heating, whilst SIZEABLE FRONT and REAR GARDENS complete the property, with an exterior shed and BRICK BUILT UTILITY ROOM. Once inside, the hall entrance leads to the SITTING ROOM with a PICTURE WINDOW to front, with the KITCHEN/DINING ROOM adjacent, with space for appliances and a useful STORAGE space under the stairs. The rear lobby offers the stairs to the first floor, and access to the SHOWER ROOM. Upstairs, THREE BEDROOMS and a newly fitted FAMILY BATHROOM can all be found off the landing.
SETTING THE...
IN SUMMARY
Guide Price £210,000 - £220,000. NO CHAIN. This MODERNISED mid-terrace home is situated on the fringes of this POPULAR TOWN. The property is finished with uPVC double glazing and electric storage heating, whilst SIZEABLE FRONT and REAR GARDENS complete the property, with an exterior shed and BRICK BUILT UTILITY ROOM. Once inside, the hall entrance leads to the SITTING ROOM with a PICTURE WINDOW to front, with the KITCHEN/DINING ROOM adjacent, with space for appliances and a useful STORAGE space under the stairs. The rear lobby offers the stairs to the first floor, and access to the SHOWER ROOM. Upstairs, THREE BEDROOMS and a newly fitted FAMILY BATHROOM can all be found off the landing.
SETTING THE SCENE
A lawned frontage offers a gated and hedged front boundary, with access leading to the main property.
ENTRANCE HALL
Wood effect flooring, smooth ceiling, doors to:
SITTING ROOM
Dimensions: 13' 2" x 11' 3" Max (4.01m x 3.43m). Wood effect flooring, electric storage heating x2, uPVC double glazed window to front, smooth ceiling.
KITCHEN/DINING ROOM
Dimensions: 15' 8" x 9' Max(4.78m x 2.74m). Fitted range of wall and base level units with complementary rolled edge work surfaces and inset one and a half bowl ceramic sink and drainer unit with mixer tap, tiled splash backs, space for electric or gas cooker with stainless steel splash back and extractor fan over, space for fridge/freezer, space for dishwasher, space for washing machine, space for dining table, wood effect flooring, electric storage heating, uPVC double glazed window to front, uPVC double glazed window to rear, television point, smooth ceiling, door to:
REAR LOBBY
Wood effect flooring, door to rear, stairs to first floor landing, smooth ceiling, door to:
SHOWER ROOM
Three piece suite comprising low level W.C, pedestal hand wash basin, electric shower over wet room flooring, tiled walls, shaver point, extractor fan, vinyl flooring, heated towel rail, uPVC obscure double glazed window to rear.
STAIRS TO FIRST FLOOR LANDING
Fitted carpet, electric storage heating, uPVC double glazed window to front, smooth ceiling with loft access hatch, doors to:
DOUBLE BEDROOM
Dimensions: 10' 6" x 6' 9" (3.2m x 2.06m). Fitted carpet, electric storage heating, uPVC double glazed window to front, uPVC double glazed window to rear, smooth ceiling.
DOUBLE BEDROOM
Dimensions: 10' 6" x 6' 9" (3.2m x 2.06m). Fitted carpet, uPVC double glazed window to front.
DOUBLE BEDROOM
Dimensions: 10' 8" x 8' 8" Max (3.25m x 2.64m). Fitted carpet, electric storage heating, uPVC double glazed window to rear, smooth ceiling.
FAMILY BATHROOM
Three piece suite comprising low level W.C, pedestal hand wash basin and mixer tap over, panelled bath with mixer tap, electric shower and glazed shower screen, aqua board splash backs, smooth ceiling.
UTILITY ROOM
Fitted range of wall and base level units with complementary rolled edge work surfaces and inset stainless steel sink and drainer unit, space for washing machine.
FIND US
You may wish to use your Sat-Nav (IP20 9HT), but to help you...From the centre of Harleston proceed out of the town along the Redenhall Road turning right into School Lane. Turn right into Jays Green, and left onto Briar Road. Follow the road, turning right which continues as Briar Road, where the property will be found on the right hand side.
THE GREAT OUTDOORS
A bisected rear garden offers a patio are and main lawn, with a range of planting and a useful timber built storage shed. Gated access leads to the front of the property.
Key Information
Utility Supply
Rights and Restrictions
Risks
Other
Click the floorplan to enlarge
For Sale
Guide Price £240,000
For Sale
Guide Price £240,000
For Sale
Offers Over £225,000
1/12