FREE INSTANT ONLINE VALUATION
For Sale
Guide Price
£550,000
Freehold
IN SUMMARY
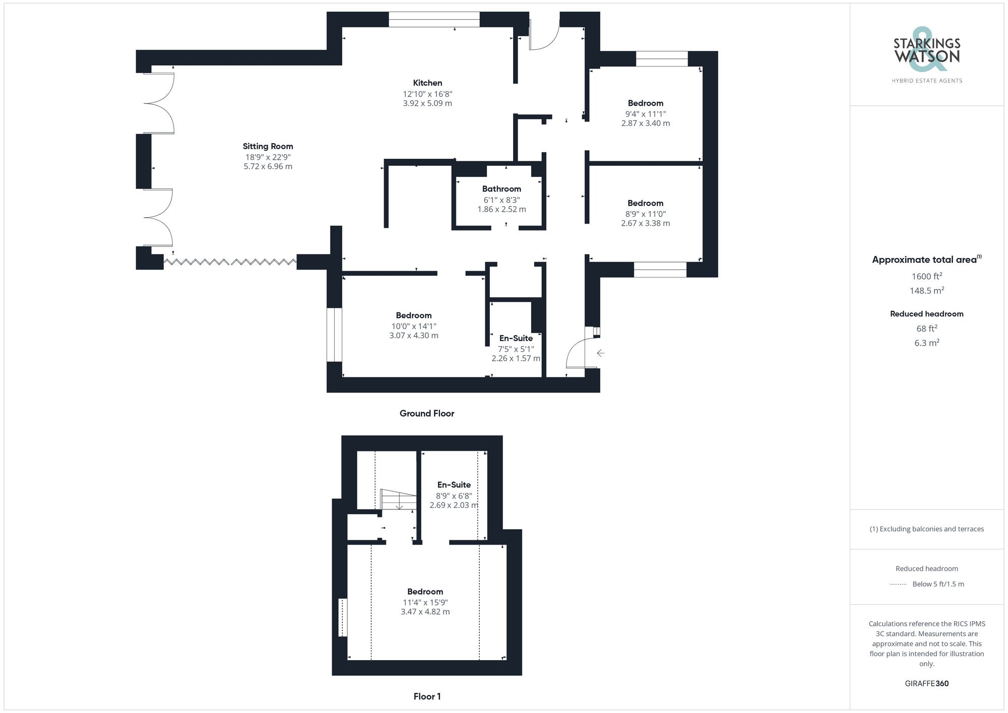
Nestled in a picturesque RURAL VILLAGE SETTING, this BRAND NEW DETACHED HOME offers the perfect blend of modern luxury and tranquil surroundings. Boasting approximately 1600 sq. ft (stms) of BEAUTIFULLY DESIGNED living space, this property is sure to capture your heart. Step inside the spacious 22' OPEN PLAN SITTING ROOM with a vaulted ceiling, providing a light and airy feel that instantly welcomes you home. The open plan fully FITTED KITCHEN and separate UTILITY ROOM offer convenience and functionality, perfect for modern living. With up to FOUR BEDROOMS, two EN SUITES can be found on the ground and first floors, along with en suites, and a family SHOWER ROOM, this home provides ample space for family and...
IN SUMMARY
Nestled in a picturesque RURAL VILLAGE SETTING, this BRAND NEW DETACHED HOME offers the perfect blend of modern luxury and tranquil surroundings. Boasting approximately 1600 sq. ft (stms) of BEAUTIFULLY DESIGNED living space, this property is sure to capture your heart. Step inside the spacious 22' OPEN PLAN SITTING ROOM with a vaulted ceiling, providing a light and airy feel that instantly welcomes you home. The open plan fully FITTED KITCHEN and separate UTILITY ROOM offer convenience and functionality, perfect for modern living. With up to FOUR BEDROOMS, two EN SUITES can be found on the ground and first floors, along with en suites, and a family SHOWER ROOM, this home provides ample space for family and guests. Enjoy PANORAMIC FIELD VIEWS from the comfort of your home, and soak in the natural beauty that surrounds you. Step outside to the WRAP-AROUND LAWNED GARDENS and double garage, completing this idyllic picture of country living.
SETTING THE SCENE
Tucked at the end of the development and approached via a brick-weave driveway, a detached garage is to be constructed and will include an EV car charging point. The front garden offers an area of plum slate, with a hard standing footpath which takes you to the front door. A side access gate leads to the side and rear gardens.
THE GRAND TOUR
Once inside, a spacious hall entrance complete with wood flooring and underfloor heating greets you, with stairs rising to the first floor landing and a range of useful built-in storage cupboards. Doors lead off to the ground floor bedroom and living accommodation. The main living space is fully open plan incorporating wood flooring and underfloor heating in the main sitting area, and tiled flooring within the kitchen space. Sitting under a vaulted ceiling with velux windows, bi-folding and French doors lead out to the rear garden with ample space provided for soft furnishings and a dining table, whilst the kitchen will offer a bespoke range of contrasting units with integrated cooking appliances and general white goods. A door leads off to a utility room which will be finished in a matching style and design with a rear facing door and space for laundry appliances. From the hall entrance three bedrooms lead off - all finished with underfloor heating and ready for carpeting, with the main bedroom enjoying a high ceiling with recessed spotlighting and access to a private en-suite which will house a three piece suite including a walk-in double shower cubicle with a twin head thermostatically controlled rainfall shower. The remaining bedrooms are served by ground floor family shower room which will incorporate a shower cubicle with a rainfall shower and built-in storage under the hand wash basin.
To the upstairs a further double bedroom sits under a vaulted ceiling with a velux window, leading to an en-suite which will be completed with a three piece suite. The walk-in shower cubicle will include a rainfall shower along with storage under the hand wash basin.
FIND US
Postcode : IP22 2BF
What3Words : ///kindness.masses.serious
VIRTUAL TOUR
View our virtual tour for a full 360 degree of the interior of the property.
AGENTS NOTES
The property is being built with a 10 year structural warranty. Private Drainage is via a newly installed Klargester with shared responsibility of costs – electricity will be provided by Plot 1 with a sub meter in place to allow the management company to be charged accordingly. Some photos have been digitally enhanced to demonstrate how the exterior will look upon completion, and how the property could be furnished.
Key Information
Utility Supply
Rights and Restrictions
Risks
Other
THE GREAT OUTDOORS
Wrap around gardens envelope the property, with low level timber post and rail fencing ensuring the viewings beyond can be enjoyed. Once the turf has been laid, the size can be fully appreciated, allowing a seamless flow from the patio seating areas which extend from the bi-folding doors. Given the size and proportions, there is clear potential for further landscaping.
Anti-Money Laundering (AML) Fee Statement:
To comply with HMRC's regulations on Anti-Money Laundering (AML), we are legally required to conduct AML checks on every purchaser once a sale is agreed. We use a government-approved electronic identity verification service to ensure compliance, accuracy, and security. This is approved by the Government as part of the Digital Identity and Attributes Trust Framework (DIATF). The cost of anti-money laundering (AML) checks are £25 including VAT per person, payable in advance after an offer has been accepted. This fee is mandatory to comply with HMRC regulations and must be paid before a memorandum of sale can be issued. Please note that the fee is non-refundable.
General Disclaimer:
Whilst every care has been taken to prepare these sales particulars, they are for guidance purposes only. All measurements are approximate are for general guidance purposes only
Click the floorplan to enlarge
For Sale
In Excess of £600,000
For Sale
Guide Price £585,000
1/19