FREE INSTANT ONLINE VALUATION
Sold STC
Guide Price
£300,000
Freehold
IN SUMMARY
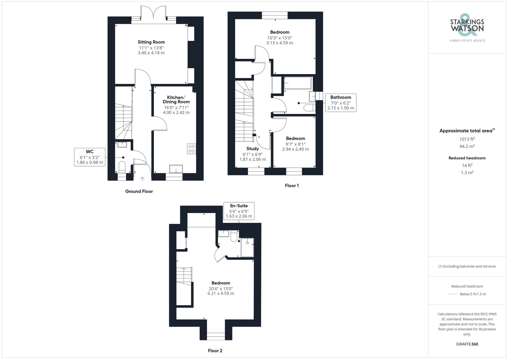
Positioned at the top of a quiet CUL-DE-SAC, this modern SEMI-DETACHED TOWNHOUSE boasts over 1,010 Sq. Ft (stms) of IMMACULATELY PRESENTED accommodation offering a versatile layout. Comprising a HALLWAY ENTRANCE with storage and a convenient W.C. The OPEN PLAN KITCHEN and DINING ROOM boasts a full suite of high specification INTEGRATED APPLIANCES and high gloss STORAGE CUPBOARDS. Positioned at the rear of the home, the 13’ SITTING ROOM boasts a BESPOKE MADE MEDIA WALL including a feature ELECTRIC FIRE, whilst FRENCH DOORS open to the garden. The first floor boasts TWO BEDROOMS, complete with a three piece FAMILY BATHROOM found centrally from the hallway. Stairs rise to the second floor from the STUDY SPACE leading to the...
IN SUMMARY
Positioned at the top of a quiet CUL-DE-SAC, this modern SEMI-DETACHED TOWNHOUSE boasts over 1,010 Sq. Ft (stms) of IMMACULATELY PRESENTED accommodation offering a versatile layout. Comprising a HALLWAY ENTRANCE with storage and a convenient W.C. The OPEN PLAN KITCHEN and DINING ROOM boasts a full suite of high specification INTEGRATED APPLIANCES and high gloss STORAGE CUPBOARDS. Positioned at the rear of the home, the 13’ SITTING ROOM boasts a BESPOKE MADE MEDIA WALL including a feature ELECTRIC FIRE, whilst FRENCH DOORS open to the garden. The first floor boasts TWO BEDROOMS, complete with a three piece FAMILY BATHROOM found centrally from the hallway. Stairs rise to the second floor from the STUDY SPACE leading to the 20’ MAIN BEDROOM. This expansive space offers PART VAULTED CEILINGS, VELUX WINDOW’s with INTEGRATED WARDROBE space and a luxurious three piece ENSUITE SHOWER ROOM. Externally, convenience is abundant with a larger than average TANDEM DRIVEWAY adjacent, leading to the GARAGE. To the rear, the well established GARDEN is PRIVATE & FULLY ENCLOSED.
SETTING THE SCENE
The property can be found set back from the road, offering a brick weave tandem driveway leading to the garage with a mature frontage offering a range of well established shrubs, bisected by a flagstone pathway leading to the main entrance covered with an open porch.
THE GRAND TOUR
Stepping inside, the hallway entrance is light and bright with integral storage beneath the stairs and a convenient two piece W.C to the left. The open plan kitchen and dining room offers tiled flooring running underfoot for ease of maintenance. The kitchen itself offers a range of wall and base high gloss storage cupboards, with a full suite of integrated appliances including a double oven, four burner gas hob, extractor, dishwasher and fridge freezer with ample room for formal dining. The end of the hallway leads to the 13’ sitting room, flooded with natural light from uPVC double glazed French doors and windows offering views out to the garden. Carpeted flooring runs underfoot with the room centred around a bespoke made media wall including an electric feature fireplace with spotlight lit recesses on either side perfect for storage and decoration.
Ascending the stairs to the galleried first floor, a double integrated storage cupboard can be found, whilst doors open to two bedrooms. The larger double room enjoys a rear facing aspect with carpeted flooring, radiator and ample room for storage furniture. The second room also enjoys carpeted flooring with uPVC double glazed windows. Located centrally from the landing, the three piece family bathroom includes tiled flooring and surrounds. The final doorway provides access to the second floor staircase, with room perfectly utilised as a study.
Heading up to the second floor. The main bedroom boasts loft access, eaves storage and integrated wardrobe space, the room itself offers part vaulted ceilings with Velux windows and enjoys a spacious feel. A door to the corner of the room opens to the three piece ensuite bathroom including an inset glass door enclosed shower cubicle with a further Velux window overhead flooding the room with natural light.
FIND US
Postcode : NR13 4JP
What3Words : ///bikes.green.ambushed
VIRTUAL TOUR
View our virtual tour for a full 360 degree of the interior of the property.
THE GREAT OUTDOORS
Stepping outside, the rear garden initially offers a flagstone patio with side access via a wooden gate leading out to the driveway and useful pedestrian access to the garage. The remainder of the garden is predominantly laid to a well kept lawn with a range of mature and well established shrubs and plantings on either border leading to a further patio at the end of the garden, perfect for outdoor furniture to enjoy the summer months.
Key Information
Utility Supply
Rights and Restrictions
Risks
Other
Click the floorplan to enlarge
For Sale
Guide Price £340,000
1/19