FREE INSTANT ONLINE VALUATION
To Let
£1,300 pcm
Freehold
IN SUMMARY
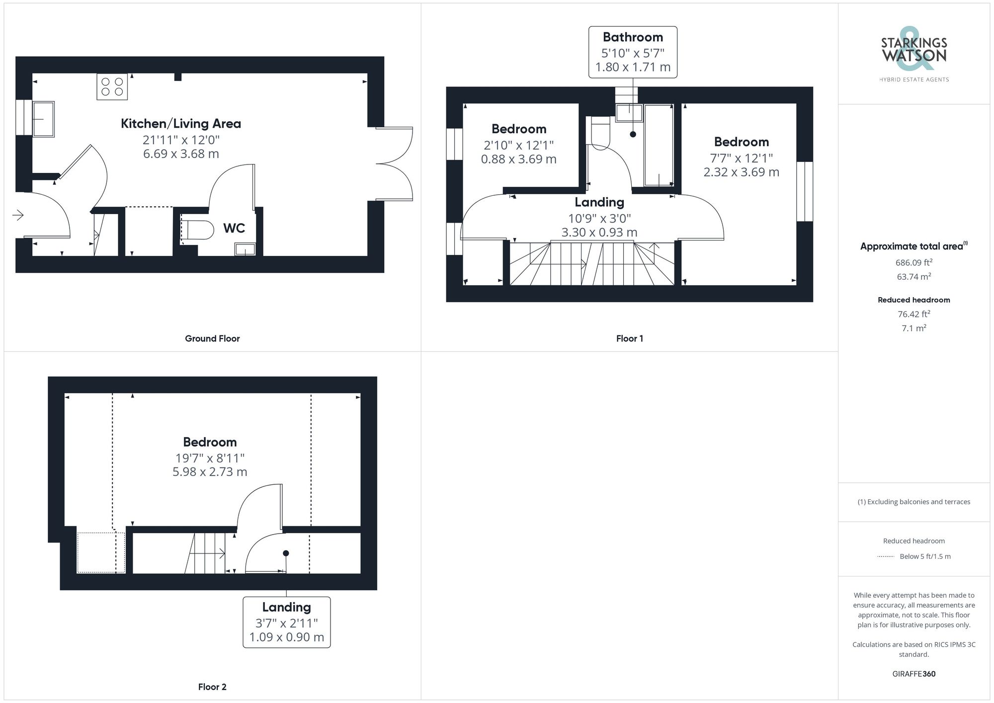
This 2024 built semi-detached TOWNHOUSE offers over 680 Sq. ft (stms) of accommodation over THREE FLOORS, with a LANDSCAPED and LAWNED GARDEN, and TANDEM DRIVEWAY. Finished to a HIGH STANDARD with uPVC double glazing and gas fired CENTRAL HEATING, the entrance porch leads into the OPEN PLAN KITCHEN/SITTING ROOM with BUILT-IN STORAGE, FRENCH DOORS to the garden and ground floor W.C. The first set of stairs leads to TWO BEDROOMS and the family bathroom complete with a shower, with the top floor offering FURTHER STORAGE, and the main bedroom. The GARDENS offer a newly laid LAWN and PATIO, with gated access to the driveway.
SETTING THE SCENE
With a low maintenance frontage, the property fronts Shrub Lane with...
IN SUMMARY
This 2024 built semi-detached TOWNHOUSE offers over 680 Sq. ft (stms) of accommodation over THREE FLOORS, with a LANDSCAPED and LAWNED GARDEN, and TANDEM DRIVEWAY. Finished to a HIGH STANDARD with uPVC double glazing and gas fired CENTRAL HEATING, the entrance porch leads into the OPEN PLAN KITCHEN/SITTING ROOM with BUILT-IN STORAGE, FRENCH DOORS to the garden and ground floor W.C. The first set of stairs leads to TWO BEDROOMS and the family bathroom complete with a shower, with the top floor offering FURTHER STORAGE, and the main bedroom. The GARDENS offer a newly laid LAWN and PATIO, with gated access to the driveway.
SETTING THE SCENE
With a low maintenance frontage, the property fronts Shrub Lane with an adjacent tandem brick-weave driveway and gated access to the rear garden.
THE GRAND TOUR
The carpeted hall entrance includes stairs to the first floor landing and electric fuse box. Heading into the open plan kitchen/living space, the kitchen sits at the front of the property with wood effect flooring underfoot, and u-shape arrangement of kitchen units including an inset gas hob, built-in electric oven with stainless steel splash-back and extractor fan above. Space for general white goods includes a fridge freezer and washing machine. A window faces the front whilst a cupboard conceals the wall mounted gas fired central heating boiler. A useful recess can be found under the stairs for storage with the main living space opening up with fitted carpet underfoot, built-in breakfast bar and uPVC double glazed French doors to the rear garden. A door leads off to a ground floor W.C with a white two piece suite, wood effect flooring and tiled splash-backs.
Heading upstairs, the first floor landing is carpeted with doors leading to the second bedroom which faces to the rear of the property, complete with fitted carpet underfoot, and the third bedroom which faces the front with two windows to front and also fitted carpet. The family bathroom sits between the two bedrooms with a modern white three piece suite, tiled splash backs and a thermostatically controlled shower over the bath.
The top floor offers a large double bedroom with velux windows to front and rear, with storage leading off the landing.
FIND US
Postcode : NR6 5FR
What3Words : ///dragon.loser.patrol
VIRTUAL TOUR
View our virtual tour for a full 360 degree of the interior of the property.
Key Information
Utility Supply
Rights and Restrictions
Risks
Other
THE GREAT OUTDOORS
The rear garden is finished with a main lawned expanse and patio seating area from the rear French doors whilst being fully enclosed with timber panelled fencing and with gated access to the driveway.
General Disclaimer:
Whilst every care has been taken to prepare these sales particulars, they are for guidance purposes only. All measurements are approximate are for general guidance purposes only
Click the floorplan to enlarge
1/14