FREE INSTANT ONLINE VALUATION

For Sale

Snow Street, Roydon, Diss

Guide Price

£260,000

Freehold

  • Virtual Tour
  • Bungalow
  • Bedrooms: 2
  • Bathrooms: 1
  • Reception Rooms: 2

Description

IN SUMMARY
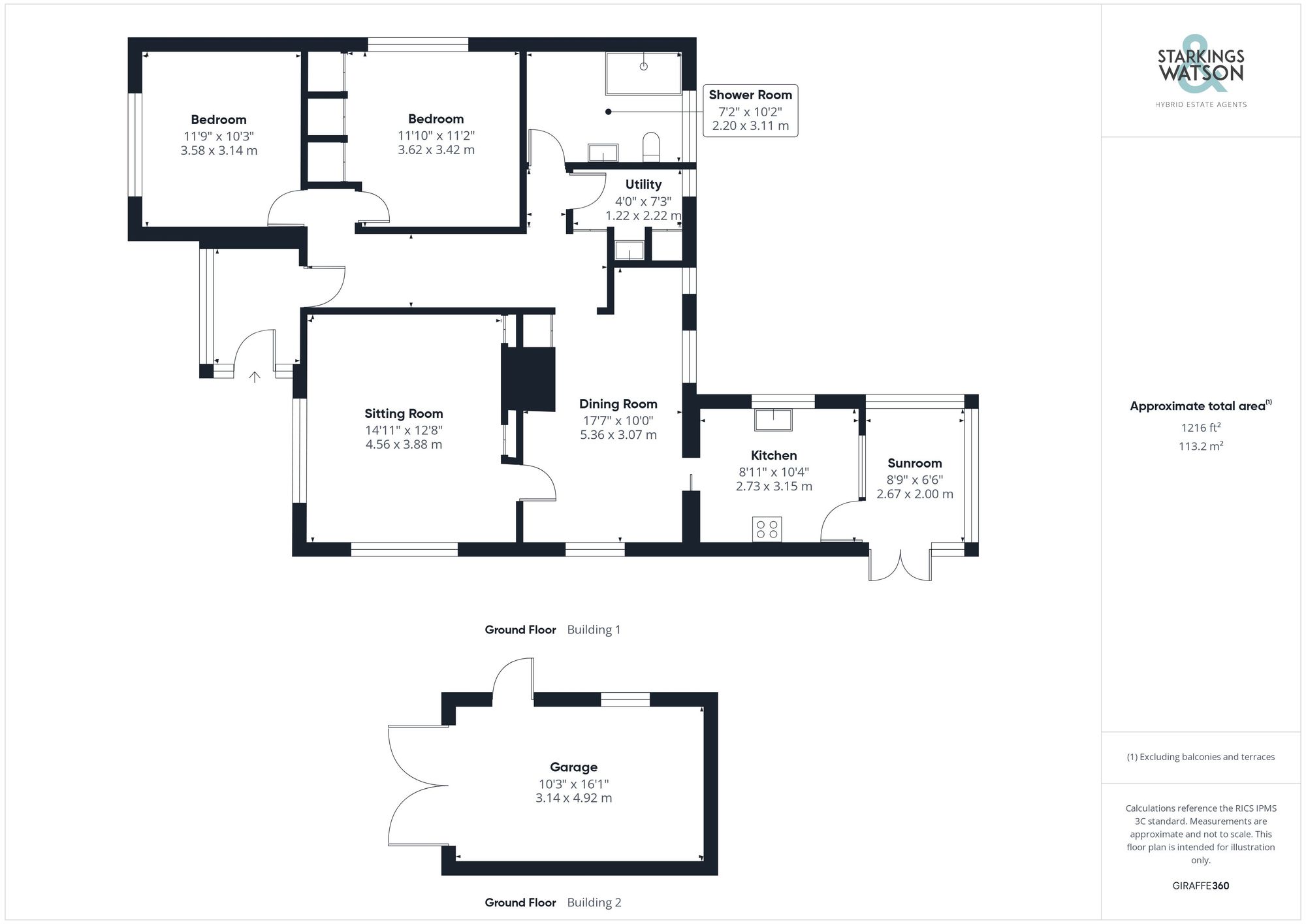
Guide Price £260,000 - £270,000. NO CHAIN! This spacious TWO BEDROOM DETACHED BUNGALOW offers over 1,000 square feet of versatile accommodation (stms) and is available with no onward chain. The property built in the 1950’s is of non standard construction and welcomes you with a bright entrance hall leading to a generous sitting room at the front, perfect for relaxing or entertaining guests. A separate DINING ROOM provides an inviting space for formal meals, while the adjoining kitchen offers ample storage and the potential to EXTEND into the adjoining sunroom (STP), creating a superb open-plan living area if desired. Both of the TWO LARGE DOUBLE BEDROOMS, providing comfortable retreats with plenty of natural light. The modern WALK...

Read full description

Key Information

Utility Supply

  • Electric
    National Grid
  • Water
    Direct Main Waters
  • Heating
    Oil Only, Wood Burner, Other
  • Broadband Ask agent
  • Mobile intermittent
  • Sewerage
    Standard

Rights and Restrictions

  • Private rights of way
    Ask agent
  • Public rights of way
    Ask agent
  • Listed property
    Ask agent
  • Restrictions
    Ask agent

Risks

  • Flooded in last 5 years
    Ask agent
  • Flood defenses
    Ask agent
  • Source of flood
    Ask agent

Other

  • Parking
    Ask agent
  • Construction materials
    Ask agent
  • Is a mining area?
    No
  • Has planning permission?
    No
Garden

THE GREAT OUTDOORS
The rear gardens offer plenty of space for a keen gardener and form part of the 0.2 acre plot (stms). There is a covered passageway from the garage door and side gate through to the rear garden. At the rear of the garden are two good sized sheds. Immediately at the rear of the property there is another patio where there is summerhouse of timber construction. Just beyond the patio there is trellis work with climbing roses and herbaceous plants and there are further herbaceous plants to the boundaries. There is a good size aluminium framed greenhouse and the rear gardens back out onto grass meadows. There are raised planting beds and well stocked borders throughout the garden as well as the external oil fired boiler and oil tank also.

Disclaimer

Anti-Money Laundering (AML) Fee Statement:
To comply with HMRC's regulations on Anti-Money Laundering (AML), we are legally required to conduct AML checks on every purchaser once a sale is agreed. We use a government-approved electronic identity verification service to ensure compliance, accuracy, and security. This is approved by the Government as part of the Digital Identity and Attributes Trust Framework (DIATF). The cost of anti-money laundering (AML) checks are £50 including VAT per person, payable in advance after an offer has been accepted. This fee is mandatory to comply with HMRC regulations and must be paid before a memorandum of sale can be issued. Please note that the fee is non-refundable.

General Disclaimer:
Whilst every care has been taken to prepare these sales particulars, they are for guidance purposes only. All measurements are approximate are for general guidance purposes only.

Location

Floorplan

Virtual Tour

Similar Properties

Sold STC

Mount Pleasant, Diss

Guide Price £290,000

  • 4
  • 1
  • 2
More Details Book a Viewing

Sold STC

Church Lane, Hepworth, Diss

Guide Price £290,000

More Details Book a Viewing

For Sale

Norwich Road, Dickleburgh, Diss

Guide Price £285,000

  • 2
  • 1
  • 1