FREE INSTANT ONLINE VALUATION
For Sale
Guide Price
£220,000
Freehold
IN SUMMARY
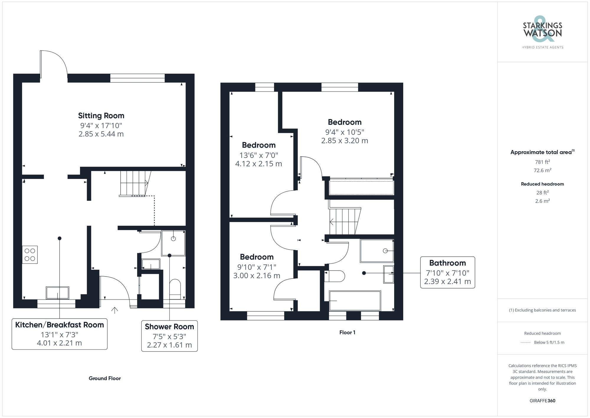
NO CHAIN. Situated in a tucked away section of this popular street with communal OFF ROAD PARKING to the front of the home, this MID-TERRACE HOUSE sits just a moments walk from a range of local amenities as well as local public transport links and schools. The main living space comes in the form of a 17’ SITTING ROOM with all uPVC double glazed windows accessed from the fully fitted kitchen featuring an array of storage. A total of THREE BEDROOMS are accessed from the central landing with a FOUR PIECE FAMILY BATHROOM paired with an additional ground floor SHOWER ROOM and WC. The rear garden is all FULLY ENCLOSED in a low maintenance condition with timber...
IN SUMMARY
NO CHAIN. Situated in a tucked away section of this popular street with communal OFF ROAD PARKING to the front of the home, this MID-TERRACE HOUSE sits just a moments walk from a range of local amenities as well as local public transport links and schools. The main living space comes in the form of a 17’ SITTING ROOM with all uPVC double glazed windows accessed from the fully fitted kitchen featuring an array of storage. A total of THREE BEDROOMS are accessed from the central landing with a FOUR PIECE FAMILY BATHROOM paired with an additional ground floor SHOWER ROOM and WC. The rear garden is all FULLY ENCLOSED in a low maintenance condition with timber storage shed and rear access gate tucked in the corner.
SETTING THE SCENE
The property is tucked away from the main section of the street where a opening comes to a communal car park with spaces outside the front of the home.
THE GRAND TOUR
Once inside, a well proportioned entrance lobby is the first place to greet you with storage and utilities cupboard immediately to your right. Slightly further down the hallway the modified ground floor shower room can be found where all tiled flooring is accompanied by a frosted glass window and toilet as well as a corner electric shower and further vanity storage. Just beyond this space a generously sized under the stairs storage area can be found with stairs to the first floor and access to the main living accommodation on the remainder of the ground floor. Initially through an open archway, the kitchen is the first place to greet you with a wide array of wall and base mounted storage units set around tiled splashbacks leaving more than enough room for freestanding appliances with plumbing for further white goods and inset chrome sink. Through a second open archway the free flowing ground floor continues to offer a 17’ sitting room laid with all hard wearing wooden effect flooring and neat neutral décor partnered with large uPVC double glazed window and glass panelled rear door allowing natural light to fill the space. Due to its size, a potential choice of layouts can be had here with the option to include a dining or breakfast table if desired.
The first floor landing splits to allow access into all three of the bedrooms as well as four piece family bathroom and loft space with ladder access. The smaller of the bedrooms overlooks the very front of the property and is laid with all carpeted flooring, this room would make the ideal larger single bedroom, nursery or potential home office with the added addition of a built in storage wardrobe. The second bedroom is located just behind this with a rear facing aspect, this room could accommodate a double bed with additional storage solutions and much like the rest of the home benefits from a neat and neutral décor. The larger of the double bedrooms sits just next door with a multitude of built in storage spaces, this room is perfect for a double bed and additional soft furnishings with views overlooking the rear garden.
FIND US
Postcode : NR5 9EA
What3Words : ///homes.baked.taps
VIRTUAL TOUR
View our virtual tour for a full 360 degree of the interior of the property.
THE GREAT OUTDOORS
The rear garden is fully enclosed to both sides on the rear with timber panel fencing initially offering a flagstone patio perfectly positioned to make the most of the summer sunshine. With a manageable lawn space and planting borders, timber panels with timber sheds. There is potential to use the rear access gates taking you towards the side of the property.
Key Information
Utility Supply
Rights and Restrictions
Risks
Other
Click the floorplan to enlarge
For Sale
Guide Price £250,000
For Sale
Guide Price £250,000
1/21