FREE INSTANT ONLINE VALUATION
For Sale
In Excess of
£295,000
Freehold
IN SUMMARY
Positioned at the end of a QUIET CUL-DE-SAC, this DETACHED HOUSE is IMMACULATELY PRESENTED, boasting a SPACIOUS and VERSATILE layout. Internally comprising a HALLWAY ENTRANCE with stairs rising to the first floor and a conveniently located two piece W.C. Doors open to the 15’ SITTING ROOM, enjoying a DUAL ASPECT flooding the room with natural light, flowing into the OPEN PLAN KITCHEN and DINING ROOM. The recently refitted kitchen boasts INTEGRATED APPLIANCES and FRENCH DOORS opening to the garden. Heading upstairs, doors open to THREE BEDROOMS, serviced by a three piece FAMILY BATHROOM. The MAIN BEDROOM boasts an ENSUITE SHOWER ROOM and capacious FITTED WARDROBES. Stepping outside, DRIVEWAY PARKING can be found adjacent leading to the GARAGE....
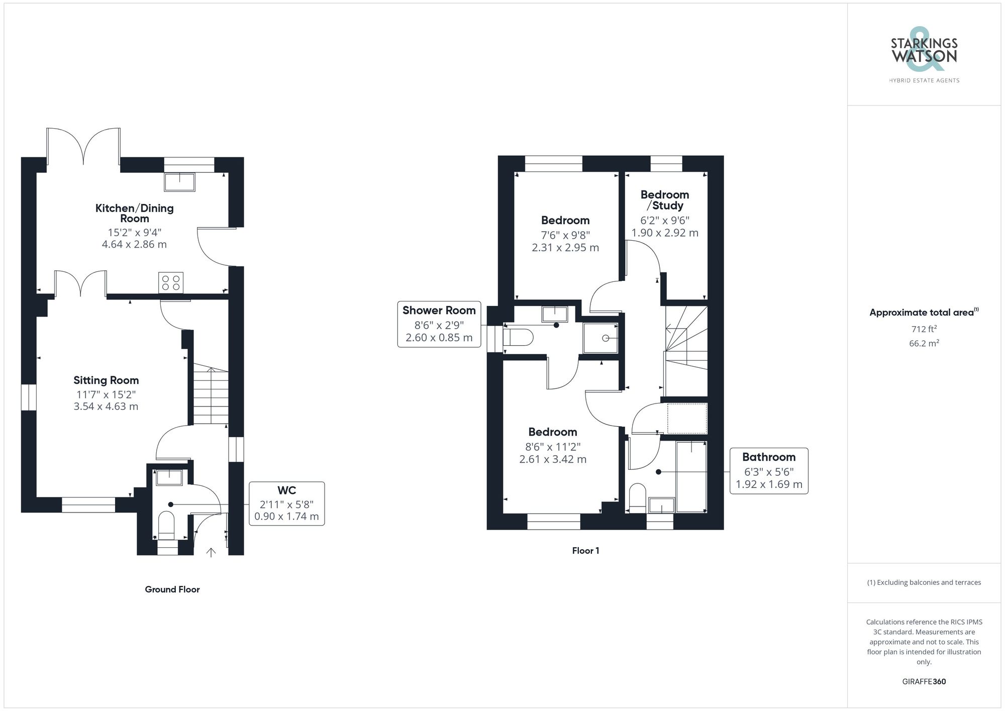
IN SUMMARY
Positioned at the end of a QUIET CUL-DE-SAC, this DETACHED HOUSE is IMMACULATELY PRESENTED, boasting a SPACIOUS and VERSATILE layout. Internally comprising a HALLWAY ENTRANCE with stairs rising to the first floor and a conveniently located two piece W.C. Doors open to the 15’ SITTING ROOM, enjoying a DUAL ASPECT flooding the room with natural light, flowing into the OPEN PLAN KITCHEN and DINING ROOM. The recently refitted kitchen boasts INTEGRATED APPLIANCES and FRENCH DOORS opening to the garden. Heading upstairs, doors open to THREE BEDROOMS, serviced by a three piece FAMILY BATHROOM. The MAIN BEDROOM boasts an ENSUITE SHOWER ROOM and capacious FITTED WARDROBES. Stepping outside, DRIVEWAY PARKING can be found adjacent leading to the GARAGE. To the rear, the GARDEN is PRIVATE and FULLY ENCLOSED.
SETTING THE SCENE
The property can be found set back from the road with a shrub enclosed frontage opening to laid lawn and a flagstone patio leading to the main entrance at the front of the property.
THE GRAND TOUR
Stepping inside, the spacious hallway entrance offers stairs rising to the first floor in addition to a conveniently located two piece W.C. Moving through, the 16’ sitting room enjoys a dual aspect from uPVC double glazed windows flooding the room with natural light. Carpeted flooring runs underfoot and integrated storage can be found to the corner. The room is centred around a feature fireplace and allows for a range of soft furnishing layouts and storage furniture. Double doors open at the end of the room to the open plan kitchen and dining space with tiled flooring underfoot. The kitchen itself includes a range of wall and base storage cupboards and integrated appliances including a double oven, four burner gas hob and extractor above. Ample worktop space is available for food preparation whilst tiled splashbacks wrap around. Under counter space is available for a washing machine and further space can be found for an American style fridge freezer with a door leading out to the garden. The room allows for formal dining whilst French doors open to the garden.
Ascending the stairs to the carpeted first floor landing, loft access can be found above with a useful integrated airing cupboard beneath. Doors open to three bedrooms with two bedrooms enjoying a rear facing aspect and carpeted flooring running underfoot serviced by a three piece family bathroom at the end of the hall, including a shower over the bath and tiled splashbacks. The main bedroom enjoys a front facing aspect with capacious fitted wardrobes wrapping around and a door opening to a three piece en-suite shower room including an inset shower cubicle with a folding glass door and a wall mounted heated towel.
FIND US
Postcode : NR8 6FU
What3Words : ///shatters.saturate.trouser
VIRTUAL TOUR
View our virtual tour for a full 360 degree of the interior of the property.
THE GREAT OUTDOORS
Stepping outside, the rear garden is private and fully enclosed with timber panel fencing enjoying a south facing aspect. Initially offering a flagstone patio perfect for outdoor furniture to enjoy the warmer weather. Pedestrian access is available to the garage and a useful storage shed can be found adjacent. The remainder of the garden is primarily laid to a well maintained lawn with borders surrounding offering a variety of mature shrubs, plantings and trees.
Key Information
Utility Supply
Rights and Restrictions
Risks
Other
Click the floorplan to enlarge
For Sale
Guide Price £335,000
For Sale
Guide Price £335,000
1/19